熱門搜索:
產品介紹
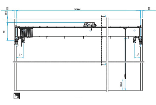
歐標電動雙梁橋式起重機設計緊湊,自重輕,輪壓小,載荷分布均勻,可以讓客戶節省可觀的投資,并大大提高有效的工作空間。它不但安全可靠,并且在設計上符合人體工程學,操作簡便,安全舒適,讓物料輸送更便捷高效。有很多配量選項可供客戶選擇,如起升變頻、葫雙、遙控控制等,以滿足各種工況或物流輸送的需求。
歐標電動雙梁橋式起重機
C 噸位120噸、跨度30米
.起升重量大、凈空低、輪壓小運行平穩
●定位快捷、 工程學設計、操作舒適
(經過嚴格測試、使用壽命長、維護量小
(安全可靠、提高生產效率、創造更大收益


